Description
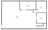
This building is available for sale or lease. Please contact the listing agent for lease information and further details. Approximately 7,197 square feet of versatile space, ideal for a medical professional office, medical spa, or other professional office uses. The property features gigabit fiber internet and reliable connectivity through Clear Network, ensuring top-tier communication capabilities. Parking is plentiful to accommodate staff and clients. The building has been recently renovated with new flooring and fresh paint, providing a modern and inviting atmosphere. The finished basement includes a full kitchen, perfect for staff amenities or additional workspace. This stunning building offers nine individual offices, with some already equipped with sinksideal for exam rooms or private offices. Other offices are plumbed and ready for customization. The space combines functionality with aesthetic appeal, making it an excellent choice for healthcare providers, dental offices or professional services seeking a turnkey solution.
-
0BEDS
-
N/AACRES
-
0BATHS
-
01/2 BATHS
School Ratings & Info
Description
This building is available for sale or lease. Please contact the listing agent for lease information and further details. Approximately 7,197 square feet of versatile space, ideal for a medical professional office, medical spa, or other professional office uses. The property features gigabit fiber internet and reliable connectivity through Clear Network, ensuring top-tier communication capabilities. Parking is plentiful to accommodate staff and clients. The building has been recently renovated with new flooring and fresh paint, providing a modern and inviting atmosphere. The finished basement includes a full kitchen, perfect for staff amenities or additional workspace. This stunning building offers nine individual offices, with some already equipped with sinksideal for exam rooms or private offices. Other offices are plumbed and ready for customization. The space combines functionality with aesthetic appeal, making it an excellent choice for healthcare providers, dental offices or professional services seeking a turnkey solution.
